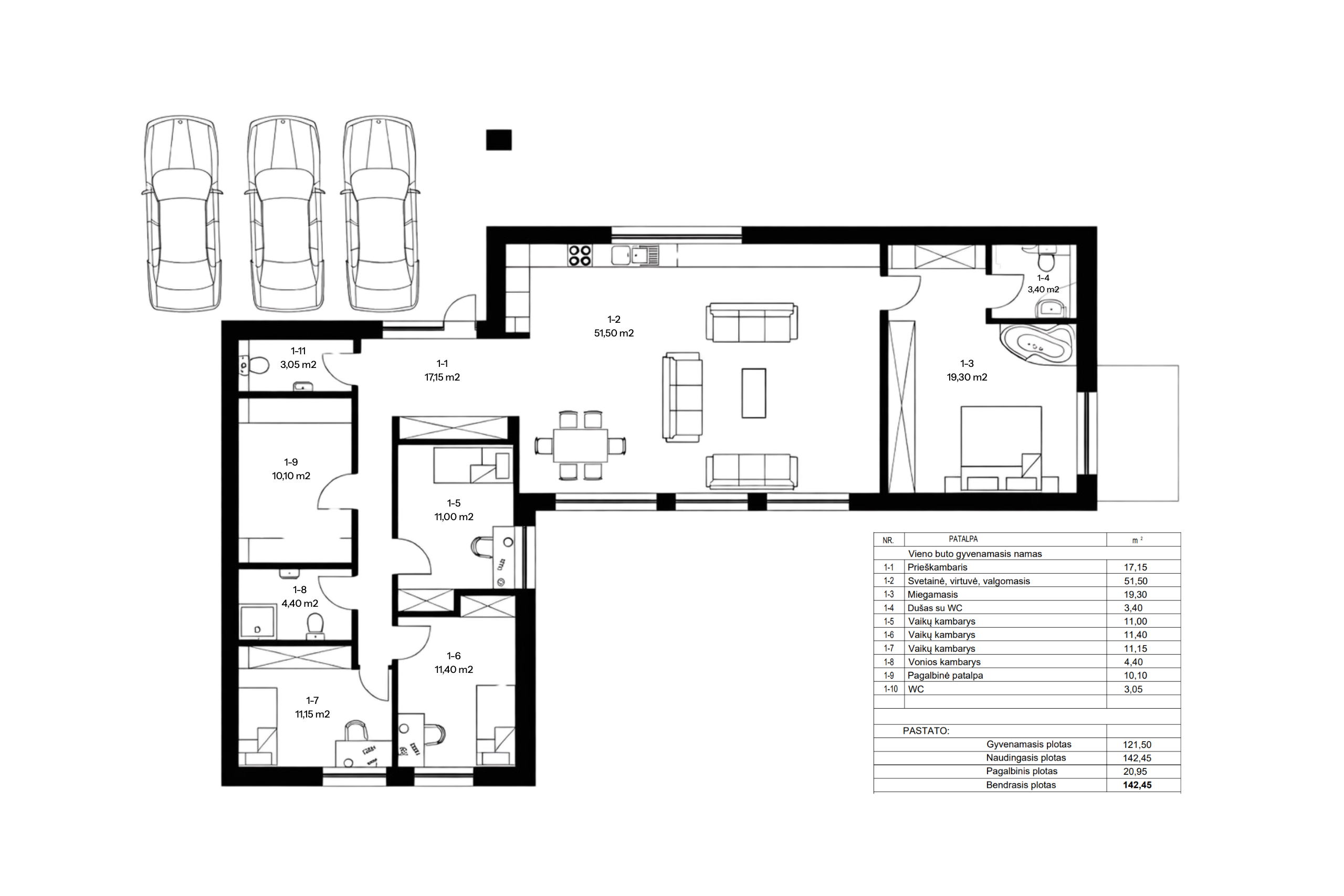
Vieno aukšto namas K29G
Ši šeima jau turėjo savo namus, bet viduje brendo aiški mintis: norisi daugiau erdvės, patogesnio išplanavimo, šiuolaikiško fasado. Ne tik naujo namo – o naujos gyvenimo kokybės.
Kurį laiką ieškojo jau pastatytų namų, bet nė vienas neatliepė to, kas jiems svarbiausia. Norėjosi ne kompromiso, o sprendimo, kuris leistų gyventi patogiau ir smagiau 🌿
Po pirmos konsultacijos susiderinome preliminarų biudžetą. Jie aiškiai žinojo, kur nori gyventi, ir suprato: kuo greičiau priimsi sprendimą – tuo greičiau galėsi vadinti tai savo namais. Per dvi savaites šeima rado sklypą 🥳
Ši šeima jau turėjo savo namus, bet viduje brendo aiški mintis: norisi daugiau erdvės, patogesnio išplanavimo, šiuolaikiško fasado. Ne tik naujo namo – o naujos gyvenimo kokybės.
Kurį laiką ieškojo jau pastatytų namų, bet nė vienas neatliepė to, kas jiems svarbiausia. Norėjosi ne kompromiso, o sprendimo, kuris leistų gyventi patogiau ir smagiau 🌿
Po pirmos konsultacijos susiderinome preliminarų biudžetą. Jie aiškiai žinojo, kur nori gyventi, ir suprato: kuo greičiau priimsi sprendimą – tuo greičiau galėsi vadinti tai savo namais. Per dvi savaites šeima rado sklypą 🥳
“Puiki patirtis nuo pradžios iki pat pabaigos! Viskas vyko itin sklandžiai ir profesionaliai, nereikėjo rūpintis nei dokumentais, nei statybom🤗”
Patenkintas klientas X
Daugiau projektų
A161
Vilnius
123 m2
Modernus
Šeima turėjo savo sklypą ir norėjo pastatyti namą iki 85 % baigtumo – be streso ir nesklandumų. Kai susiderinome pasiūlymą ir pasirašėme sutartį, pradėjome projektavimą.
D13VR
Vilnius
129 m2
Modernus
Dvi šeimos norėjo gyventi šalia – kartu, bet su savo erdve. Iš pradžių planavo dvibutį, bet sklypo paieška užtruko beveik metus. Atrodė, kad sprendimo nėra.






























